Skip to main content

25 Central Square Condo

25 Central Square condo in Seadide Florida

The 25 Central Square Condominium, built in 1996, resides in the heart of the quaint, cozy Seaside community. The building, which combines retail, office and residential units within four floors, is an award winning design by Boston architecture and design firm Machado and Silvetti Associates. The first floor contains retail space, the second floor contains office space and the top two floors comprise the seven condominium units of three different floor plans.

The two units on the building's west side cover 1,360 square feet each and have two bedrooms and two and a half bathrooms. The five units on the building's east side each have a one bedroom and one and a half bathroom floor plan available in either 840 or 910 square feet. The five units overlook Seaside's pivotal Central Square, the amphitheater and the Gulf. Each unit includes a private patio complete with a hot tub. A controlled elevator services the residential units, and a patio and terrace are in place for residents exclusively to enjoy. The building's frontage was designed according to the mandates of the Seaside Design Code, which aims to preserve the integrity and characteristics of Seaside's essence that requires buildings to blend with and enhance the town as a whole.

If you're looking for other Seaside Florida condos for sale, check out our main page.

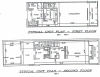
Floor Plans

Click below on any of the units to see the floor plan.

25 Central Square 1 bedroom floor plan 910 sqft unit 1
25 Central Square 1 bedroom floor plan 840 sqft units 2, 3 & 4
25 Central Square 1 bedroom floor plan 910 sqft unit 5
25 Central Square 2 bedroom floor plan 1360 sqft unit 6
25 Central Square 2 bedroom floor plan 1360 sqft unit 7

Site Plans

click below to see the site plan.

25 Central Square Condo site plan 1`st floor
25 Central Square site plan 2`nd floor

  • Hits: 15138

The Premier Property Group 10343 E County Hwy 30a, Seacrest Beach, Florida 32461. 850-231-7026 Copyright